Nuovo volto per scuola storica

Nel cuore di BG/BRG Perchtoldsdorf, a Perchtoldsdorf in Bassa-Austria, prende forma un nuovo capitolo architettonico che fonde il passato con la visione di un futuro scolastico rigenerato. Lo studio PLOV Architekten firma l’ampliamento e la ristrutturazione di questa scuola, con un intervento che dialoga con la struttura esistente, le sue linee “a pettine” e la vocazione all’apprendimento aperto.
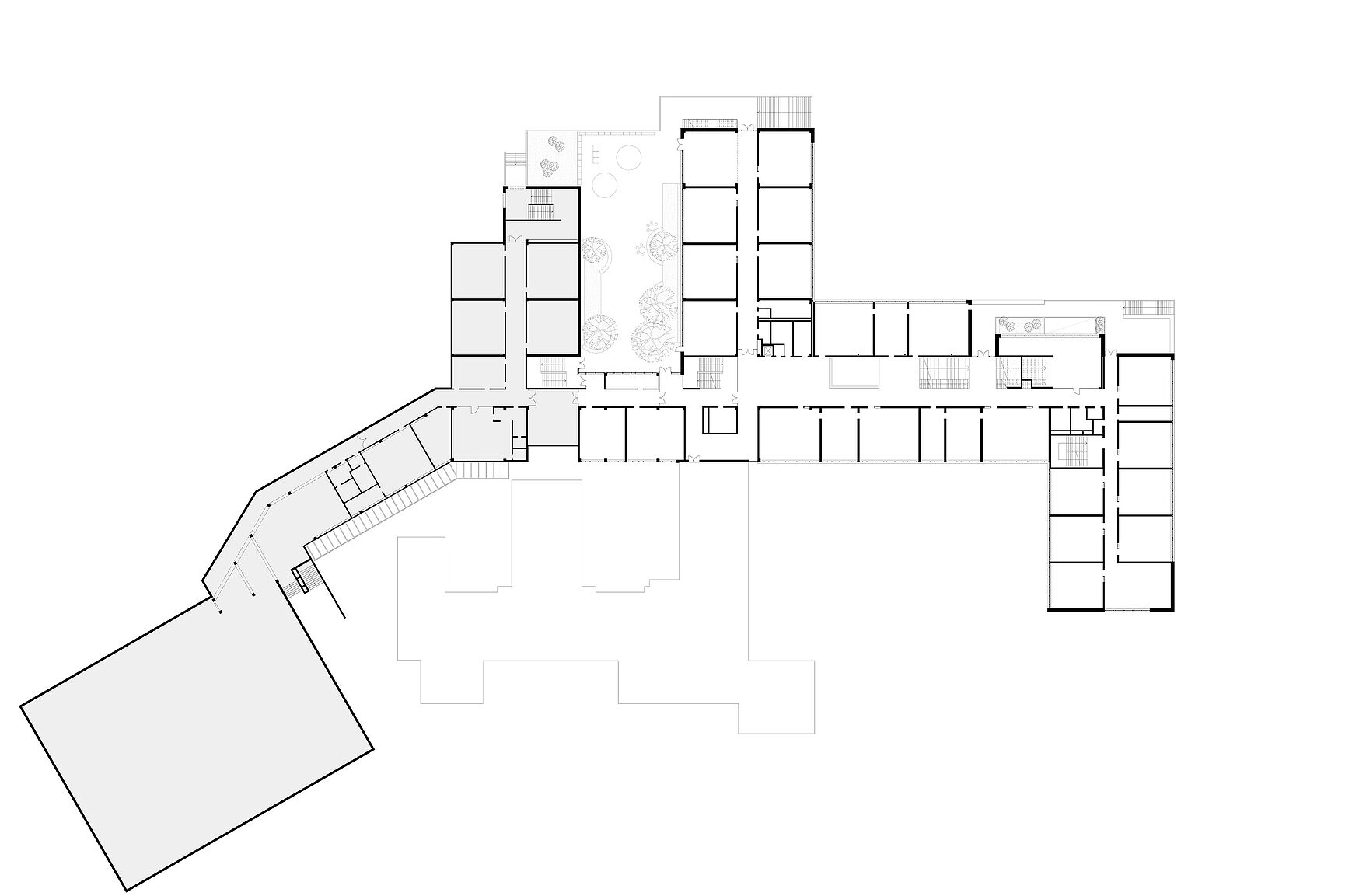
Prima di tutto i numeri: il progetto nasce da un concorso europeo indetto nel giugno 2019, conferito a PLOV con incarico nel marzo 2020. La superficie netta prevista è di 8.340m2; la superficie lorda arriva a 9.640m2, con un costo complessivo stimato in 23,7 milioni di euro. Il corpo aggiunto si sviluppa su tre piani, orienta l’espansione verso est e raccoglie la struttura preesistente in un’unica entità scolastica.
Il progetto si apre su un nuovo spazio d’ingresso che funge al tempo stesso da piazza e da cortile scolastico: qui si incontrano studente, insegnante, cittadinanza, tra eventi, workshop e pause libere. Un gesto urbano che conferisce identità al campus e ne amplifica la qualità d’uso.
Internamente, il nuovo blocco accoglie un’aula polivalente al piano d’ingresso, collegata senza soglia al salone musica e alla zona refezione – elementi che rispondono alla volontà progettuale di garantire versatilità nelle funzioni, anche nelle feste scolastiche. Al piano primo, una “zona-molla” centrale — illuminata da lucernari, con facciata nord aperta — diventa nucleo di relazione, dialogo, apprendimento informale, collegando il nuovo al preesistente.

Se l’architettura disegna spazi, la politica d’intervento li rende coerenti: si è lavorato con delicatezza sul sottostante edificio esistente – limitando l’intervento solo a ciò che era strettamente necessario e privilegiando la continuità dell’edificio originale. In termini di accessibilità, la nuova area guardaroba è stata ampliata di circa 80m2 e resa completamente priva di barriere architettoniche; l’ingresso, spostato al livello dell’ex-seminterrato esistente, genera un grande atrio che introduce al campus.
L’esterno del nuovo edificio non è solo volume: accanto alla facciata si sviluppa una gradonata centrale, che collega i livelli e funge da seduta informale, da sala all’aperto, da ponte tra interno ed esterno e tra storia e contemporaneità. A nord, il nuovo spazio esterno è stato progettato con pavimentazione permeabile, isole verdi che ospitano alberi salvaguardati e sistemi di ritenzione idrica per un microclima interno più sostenibile.

L’approccio del progettista emerge in queste scelte: “Il nuovo corpo è concepito come estensione compatta del volume esistente, in modo da costituire insieme una sola unità scolastica” scrive lo studio, “interfacce chiare con il preesistente e un trattamento ponderato della struttura esistente rispondono a una logica orientata all’efficienza economica”. In questo modo si privilegia la coesione formale e funzionale rispetto a un mero ampliamento, trasformando l’edificio in un’esperienza scolastica integrata.
Dal punto di vista educativo e spaziale, il nuovo assetto propone una scissione tematica: le aule speciali restano in edificio esistente e sono raggruppate per tema, mentre solo l’area biologia è collocata nel nuovo corpo. Le classi ordinarie si distribuiscono tra le due strutture; i percorsi di pausa, collocati alla fine dei corridoi, sono aperti e luminosi, pensati come zone di sosta e interazione più che semplici transiti.
Si tratta quindi di un progetto che non solo risponde all’esigenza di più spazio — la scuola ospita attualmente circa 962 studenti e 85 insegnanti, destinati a crescere — ma anche di un ambiente dove la didattica trova nuovi assetti, dove la socialità studentesca è valorizzata e dove l’architettura contribuisce a definire una cultura scolastica rinnovata.
L’insieme assume così un tono evocativo: la storia della scuola — fondata nel 1976 come ex-sede provvisoria e trasferita in Roseggergasse 2-4 nel 1978 — ora acquisisce una dimensione che guarda avanti, dove il movimento degli studenti, l’interazione, la luce, gli spazi liberi diventano protagonisti. In un mondo in cui la scuola è sempre più hub multifunzionale, questo intervento dà forma a una infrastruttura educativa che parla anche di comunità, sostenibilità e benessere.

Tra i temi che emergono, prima di tutto quello della memoria: il rispetto della geometria a pettine del corpo originale e l’integrazione armoniosa del nuovo testimoniano che ampliamento non significa sovrapposizione ma connessione. Poi, la qualità dello spazio semplice e insieme ricco: trasparenze, relazioni visive, connessioni tra aula polivalente e esterno, gradonata che invita alla sosta, mezzanini che si affacciano sul vuoto. Infine, la sostenibilità ambientale — le superfici permeabili, il verde che si inserisce dentro il campus, la valorizzazione del paesaggio esistente — non sono accessori, ma parte integrante del progetto educativo.
Questo è un racconto architettonico: dove la scuola non è più solo edificio, non è più solo luogo della lezione, ma diventa “campus” nel senso più completo. Dove ogni passo, ogni scala, ogni terrazza è occasione, spazio, esperienza. Dove la città entra nella scuola e la scuola si apre al territorio. Il nuovo volto del BG/BRG Perchtoldsdorf è dunque un invito: ad apprendere, a incontrarsi, a crescere insieme.
Se lo stile ricorda quello dei luoghi in cui promessa e paesaggio si incontrano — come avviene su promisedlands.it — allora possiamo dire che qui si è costruito un “paesaggio della promessa”: un campus che promette spazi, liberazione, stimoli e comunità.
L’ampliamento è già funzionante, la general-sanierung del corpo esistente sarà completata entro il ciclo scolastico 2025/26; e così l’intera macchina scolastica si prepara ad accendersi, pienamente. Il futuro inizia qui.










