- INFO POINT
- Di Nunzio Manfredi
- Stato: Edificio concluso
Memoria in evoluzione
Edilizia commercialeLa riconversione della centrale termica di Xi'an firmata Nomos Architects trasforma un'eredità industriale in spazio culturale e commerciale, esempio di design urbano contemporaneo integrato. Rinascita del Patrimonio Industriale.
A Xi'an, città millenaria e crocevia della storia cinese, una centrale termica chiusa poco meno di un ventennio fa ha assunto una nuova vitalità. Originariamente costruita per riscaldare gli alloggi degli studenti dell'Università del Petrolio e della Chimica, la centrale a carbone, inattiva dal 2014, è stata reinterpretata dallo studio Nomos Architects in uno spazio pubblico polifunzionale che coniuga cultura, commercio e identità urbana.
L'edificio, simbolo di un passato industriale recente e della rapida modernizzazione cinese, non è stato demolito ma rielaborato come nucleo di una nuova comunità artistica e sociale. Questa operazione di riuso è un paradigma di architettura che non cancella le tracce del tempo, ma le rende attuali, trasformando il "residuo" industriale in infrastruttura culturale viva, un tema sempre più centrale nel dibattito internazionale sul patrimonio architettonico.
La riconversione è stata promossa dalla TanArt Community, committente locale che ha voluto trasformare l'edificio in un catalizzatore urbano: un luogo dove l'arte, il commercio e l'esperienza pubblica si intrecciano in un tessuto fortemente segnato dalla memoria materiale del passato.
Architettura del riuso
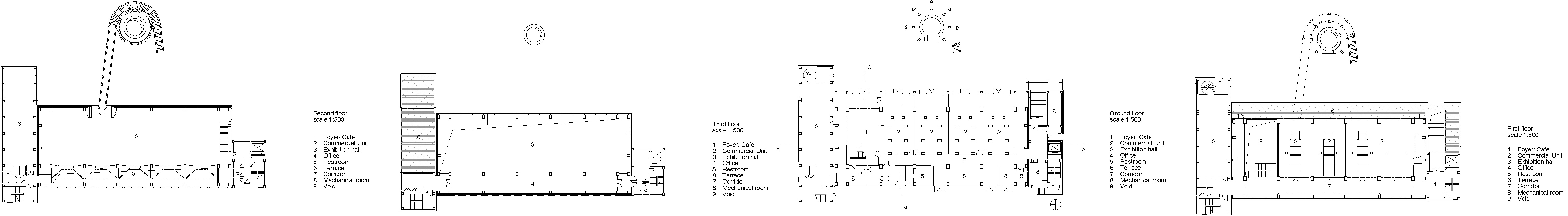
La riscrittura spaziale della centrale non è un semplice cambio di funzione, ma un racconto architettonico stratificato. Nomos Architects ha scelto di mantenere intatta la volumetria esterna e la massa fisica dell'infrastruttura, incluso il camino in mattone, elemento che domina il campus come un monumento alla storia energetica locale.
All'interno, lo spazio della sala caldaie è stato liberato dalle tamponature murarie originali e trasformato in un grande ambiente espositivo. Il telaio in cemento armato è ora visibile attraverso una facciata traslucida in policarbonato, che cattura la luce naturale e ammorbidisce il rapporto tra interno ed esterno. I silos del carbone, conservati come resti archeologici industriali, punteggiano l'area espositiva come oggetti scultorei, evocando il passato senza sacrificarne l'ergonomia contemporanea.
Questo gesto di trasparenza costruttiva - mostrare ciò che era nascosto — è un gesto narrativo: l'architettura diventa memoria visibile, in dialogo con i visitatori e con lo spirito della città di Xi'an, dove storia antica e modernità si intrecciano ovunque.
Funzione mista evita urbana
La centrale riconvertita non è un museo isolato, ma un ecosistema di funzionalità che invita un pubblico eterogeneo a permanere, scoprire e partecipare. Oltre alla grande sala espositiva, gli spazi minori ai livelli inferiori sono stati destinati a unità commerciali e servizi, capaci di finanziare eventi culturali e di attrarre nuove traiettorie di movimento urbano.
Questa strategia — integrare attività economiche con spazi culturali - ha radici nel concetto contemporaneo di "città mista", dove le funzioni non sono separate, ma si sostengono reciprocamente. Tale approccio è particolarmente efficace in contesti urbani densamente popolati come quelli del centro di Xi'an, dove attirare visitatori di diversa origine e motivazione è essenziale per la vivacità urbana.
La proiezione di Nomos non riguarda solo la conservazione, ma l'espansione di possibilità sociali: percorsi, connessioni, pratiche quotidiane che trasformano una vecchia centrale termica in un luogo di produzione culturale.
Contesto urbano e identità
L'intervento della centrale di Xi'an si inserisce in un tessuto urbano segnato da densità residenziale e continui flussi di studenti e cittadini. In questo scenario, la rigenerazione di un edificio ex industriale assume un valore identitario: non è solo riuso, ma restituzione di senso a un luogo che rischiava l'oblio.
Progetti simili in Cina — come quelli dedicati alla trasformazione di spazi industriali in centri culturali o hub urbani — riflettono una tendenza più ampia a rivalutare il patrimonio recente e a reimmaginarlo come risorsa per nuove forme di vita urbana, piuttosto che come residuo da cancellare.
Questa prospettiva è fondamentale in un paese dove l'urbanizzazione ha spesso raso al suolo interi pezzi di città in nome dello sviluppo, perdendo così relazioni significative tra costruito e memoria. Il progetto di Nomos restituisce invece un dialogo possibile tra passato e futuro, tra architettura e comunità.
Riuso come visione
La riconversione della centrale di Xi`an non è semplicemente un restauro o un cambio di funzione: è un progetto che lega architettura, società e cultura urbana in una trama coerente e poetica. In questo senso, il riuso non è un gesto marginale, ma una strategia progettuale centrale per affrontare le sfide della città contemporanea.
Nomos Architects dimostra come la memoria industriale possa diventare motore di innovazione culturale e come l'architettura — pur rispettando la materia esistente — possa reinterpretarla, scompigliarla, e restituirla alla città in forma nuova. In un tempo in cui l'urbanizzazione globale mette spesso in crisi il patrimonio, esempi come questo indicano strade concrete per coltivare il passato senza fermare il futuro.
















